ID объекта : 78197
Тип: Элитка
Этаж: 1/10
Цена: $1 940
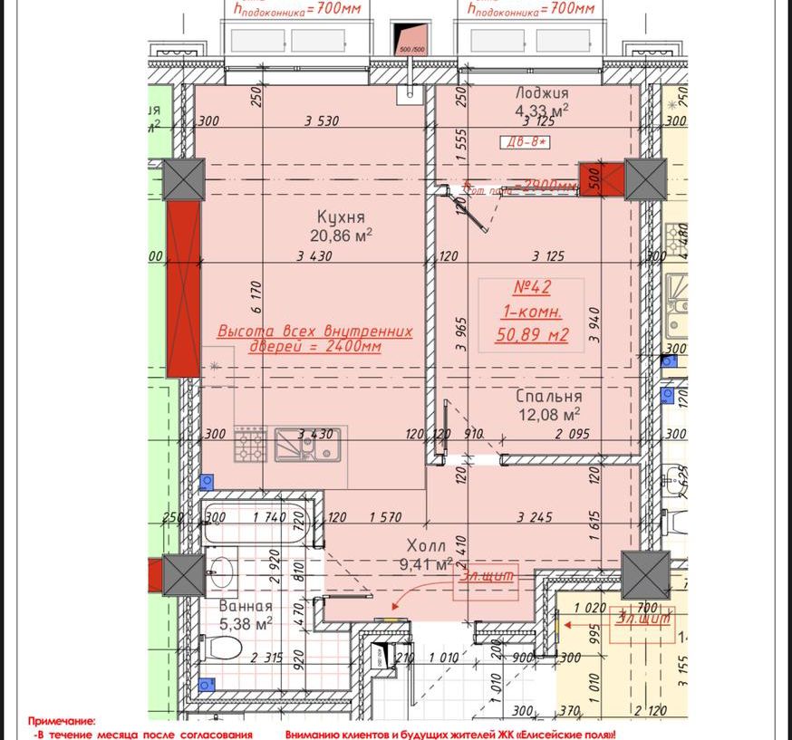
Размер объекта: 50.89 м2
Комнат: 1
Cостояние: Сдан ПСО
Коммуникации:
Автономное отопление;
Адрес: Куттубаева 19
Район: Асанбай мкр.
Описание
Продается 1 комнатная квартира
ЖК «Елисейские Поля»
СК «Авангард Стиль»
50.89м2
1/10 этаж
Сдан ПСО
Цена:1940$ за м2
Кыргыз Недвижимость
ID: 78197


