Элитка, 2 ком, 103.4 м2, этаж 4/13, ж/к Эркиндик (Erkindik), Сост: Сдан ПСО

$183 000 / 16 003 350сом
, бульвар эркиндик/линейная

ID: 70833
В понравившиеся
Срочная продажа
Фото
Карта

Обзор

  • Опубликовано:
  • 05.11.2025 14:19
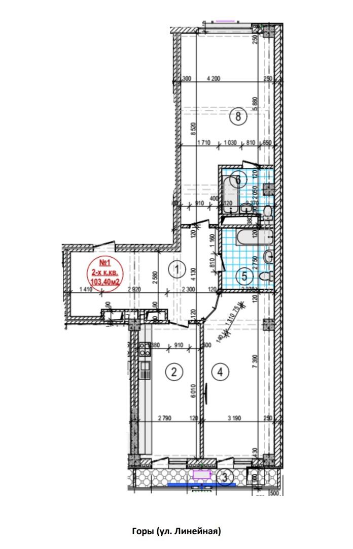
  • 103.4 м2
ID объекта : 70833
Тип:
Этаж: 4/13
Цена: $183 000
Размер объекта: 103.4 м2
Комнат: 2
Cостояние: Сдан ПСО
Коммуникации: Все коммуникации центральные;
Адрес: бульвар эркиндик/линейная
Район: Золотой квадрат (от Боконбаева до Киевской, от Советской до Орозбекова)

Описание

продается 2 ком квартира Премиум Класса ЖК Эркиндик

103,4 кв м 

блок Б

этаж 4/13

окна выходить на горы 

ПСО можно делать ремонт

Кыргыз Недвижимость 

 

Кыргыз Недвижимость
ID: 70833

Похожие объявления

Об этом объекте знает всё:

Орозобек Шаршеналиев

Специалист по недвижимости

Свяжитесь со мной

Запланировать показ?