ID объекта : 79422
Тип: Элитка
Этаж: 7/13
Цена: $191 290
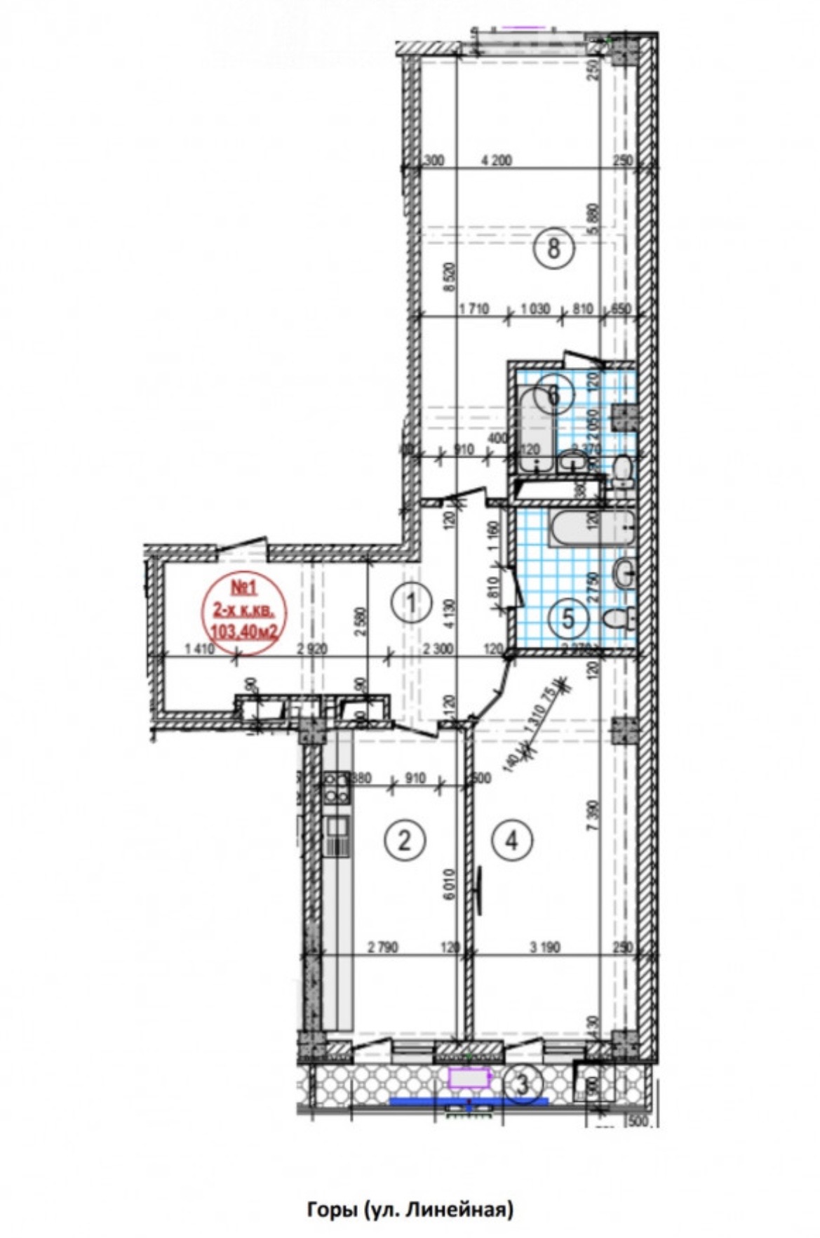
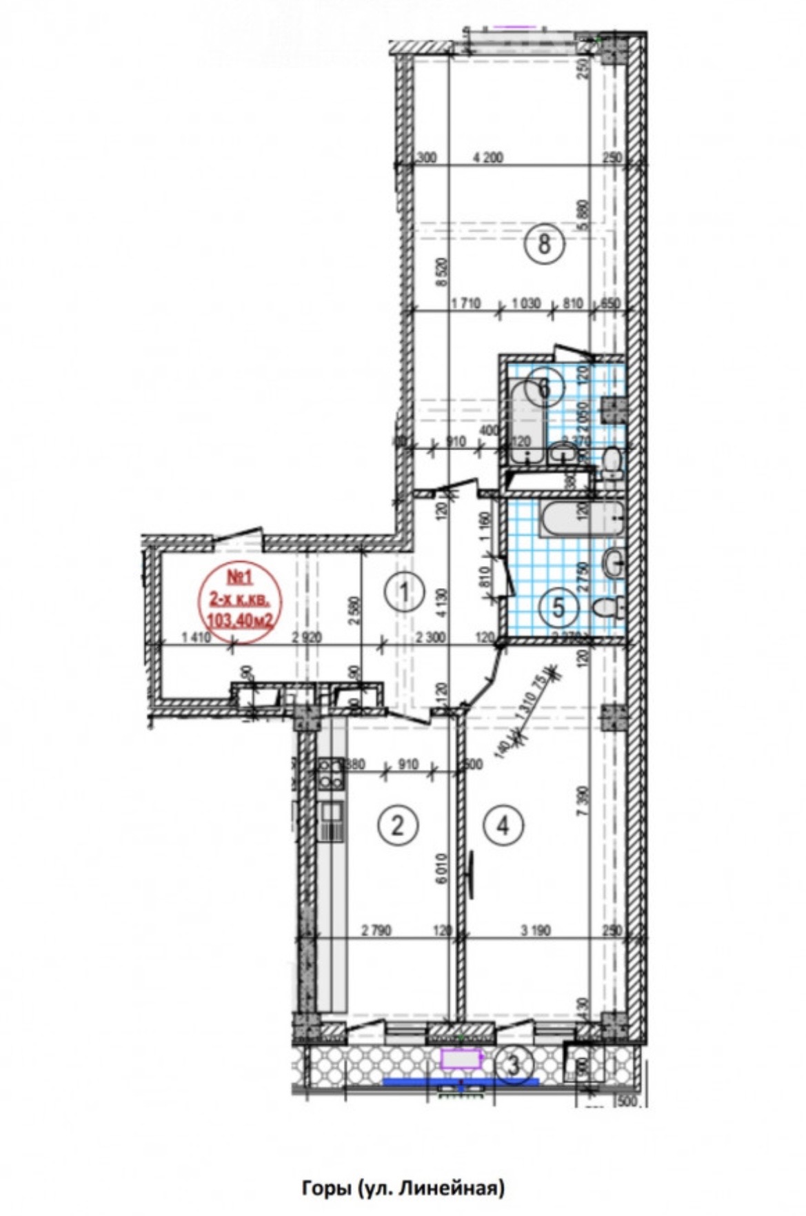
Размер объекта: 103 м2
Комнат: 2
Cостояние: Сдан ПСО
Коммуникации:
Все коммуникации центральные;
Адрес: Эркиндик 1
Район: Золотой квадрат (от Боконбаева до Киевской, от Советской до Орозбекова)
Описание
🏢 Премиум Квартира под самоотделку в ЖК «Эркиндик»
📍 Локация: бул. Эркиндик, 1
Этаж: 7 из 13
📐 Площадь: 103,4 м²
Блок В, окна выходят на север (во двор) и на юг (на горы)
💰 Цена: 191 290$
В квартире можно начинать делать ремонт
Преимущества:
- Квартира не угловая
- Центральные коммуникации: вода, отопление, электричество, газ
- Закрытая охраняемая территория
- Высокие потолки, удобная планировка
- 2 лифта премиум-класса
- Детская площадка, беседки, фонтан
- Расположение. Одна из лучших локаций в городе, с удобными подъездными путями. В пешей доступности бульвар, школы, дет.сады, кафе, рестораны, банки, салоны красоты, магазины.
Кыргыз Недвижимость
ID: 79422
















