ID объекта : 39060
Тип: Элитка
Этаж: 11/14
Цена: $51 500
Размер объекта: 43.60 м2
Комнат: 2
Cостояние: Сдан ПСО
Коммуникации:
Автономное отопление;
Газ;
Адрес: ул. Ак - Кайын 1а
Район: ж/м Кок-Жар
Описание
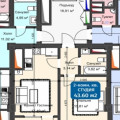
✨Продаем - 2 ком квартиру - студию
✨Сдан ПСО (можно сразу начинать ремонт)
✨ж/м Кок-жар по улице Ак-Кайын 1а
✨СК ЭЛЕГАНС СТРОЙ, ЖК АЛА-ТОО, БЛОК «Г»
✨Общая площадь - 43,60 м2 , этаж 10/14 , не/угловая
✨Дом кирпичный, все коммуникации центральные, отопление газовое
✨Комнаты изолированные, сан/узел совмещённый
✨Окна выходят на восток
✨Комплекс стоит на участке 1 ГА
✨Земля на красной книге, ДДУ (проходит регистрацию через ГРС)
Цена: 51.500$
Кыргыз недвижимость
Кыргыз Недвижимость
ID: 39060




























