ID объекта : 68521
Тип: Элитка
Этаж: 5/9
Цена: $1 350
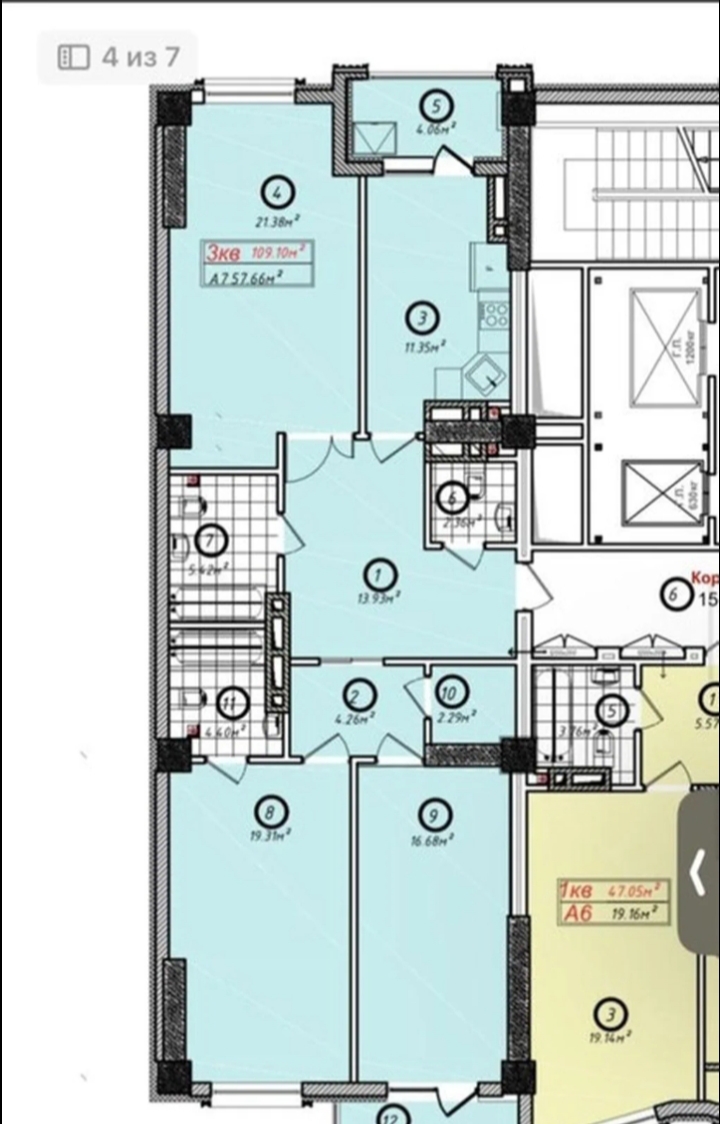
Размер объекта: 109 м2
Комнат: 3
Cостояние: Сдан ПСО
Коммуникации:
Адрес:
Район: Асанбай мкр.
Описание
ПРОДАЕТСЯ 3 ком кв Немецкий квартал НБК
109 м2 сдан ПСО сквозная лучшая планировка 5/9
Кыргыз Недвижимость
ID: 68521




