Элитка, 3 ком, 98 м2, этаж 9/16, ж/к Крейсер (Kreyser), Сост: Строящийся ПСО

$110 500 / 9 663 225сом
,

ID: 64869
В понравившиеся
Срочная продажа
Фото
Карта

Обзор

  • Опубликовано:
  • 19.09.2025 17:48
  • 98 м2
ID объекта : 64869
Тип:
Этаж: 9/16
Цена: $110 500
Размер объекта: 98 м2
Комнат: 3
Cостояние: Строящийся ПСО
Коммуникации: Газ; Центральная канализация;
Адрес:
Район: 7 апреля / Южная магистраль

Описание

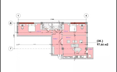
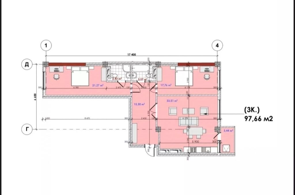
🏢 3-комнатная квартира в ЖК "Крейсер"
📍 Южная магистраль, рядом пр. Аалы Токомбаева
📐 Площадь: 98 м² | Этаж: 9 из 16
🏗 Элитка, 2024 год постройки | Застройщик: Эмарк Групп
🧱 Материал стен: кирпич | Отопление: газовое
🔧 Состояние: ПСО (под самоотделку)

🛋 Удобная планировка:

Кухня-гостиная — 33.5 м²

2 изолированные спальни — 21.3 и 17.8 м²

2 санузла, холл 15.5 м², застеклённый балкон

🏞 В шаговой доступности:

Парк Победы и строящийся Парк Дружбы

Школы, сады, вузы, магазины

Удобные выезды и инфраструктура

📄 Документы: договор долевого участия

Идеально для семьи — простор, свет и всё рядом!
📞 Звоните для уточнений и просмотра!

 

💰 Цена: 110 500$ ( 9 650 000 сом)

 

Айзирек Кыргыз недвижимость 

Тел:0707556755

Кыргыз Недвижимость
ID: 64869

Похожие объявления

Об этом объекте знает всё:

Айзирек Акышова

Специалист по недвижимости

Свяжитесь со мной

Запланировать показ?