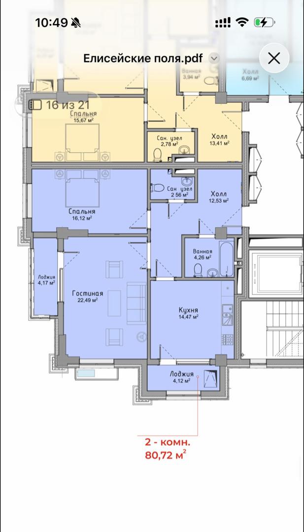
ID объекта : 79288
Тип: Элитка
Этаж: 7/10
Цена: $151 200
Размер объекта: 80.72 м2
Комнат:
Cостояние: Сдан ПСО
Коммуникации:
Автономное отопление;
Адрес: Улица Куттубаева, 19 стр
Район: Асанбай мкр.
Описание
Продается 2х комнатная квартира
ЖК Елисейские поля
СК Авангард Стиль
7/10 этаж
6 блок
Цена: 1890 за м2
Кыргыз Недвижимость
Кыргыз Недвижимость
ID: 79288


